Basketbol Sahası Detayı Dwg: Projeleriniz İçin Hemen İndirin
Spor tesisleri, okul kampüsleri ve kamusal parkların vazgeçilmez bir parçası olan basketbol sahaları, doğru projelendirildiğinde toplum için dinamik birer buluşma noktası haline gelir. Bir basketbol sahasının tasarımı, sadece saha çizgilerini çizmekten çok daha fazlasını içerir; uluslararası standartlara uygunluk, oyuncu güvenliği için doğru zemin seçimi ve uzun ömürlü bir altyapı kurulumu gibi birçok teknik detayı barındırır. Bu nedenle mimarlar, peyzaj mimarları ve mühendisler için projenin her aşamasında başvurulacak güvenilir bir teknik kaynağın önemi büyüktür. İşte bu noktada, profesyonel bir Basketbol Sahası Detayı Dwg arşivi, projenin başarısını garanti altına alan en kritik araçlardan biridir. Projemimari.com olarak, tasarımdan uygulamaya kadar size yol gösterecek, FIBA standartlarına uygun bu kapsamlı çizim setini sunuyoruz. Bu değerli Basketbol Sahası Detayı Dwg paketi ile standartlara uygun, güvenli ve yüksek performanslı sahalar inşa edebilirsiniz.
Bir basketbol sahasının kalitesi, sahanın ölçülerinden zemin katmanlarına, pota bağlantılarından drenaj sistemine kadar birçok detayın doğru çözülmesine bağlıdır. Saha çizgilerindeki birkaç santimetrelik bir hata bile, sahanın resmi müsabakalar için uygun olmamasına neden olabilir. Dış mekan sahalarında yetersiz bir drenaj, yağmur sonrası sahanın kullanılamaz hale gelmesine yol açar. Bu gibi sorunları önlemenin tek yolu, projelendirme aşamasında her detayı dikkatle ele almaktır. Elinizin altındaki kapsamlı bir Basketbol Sahası Detayı Dwg kütüphanesi, Türkiye Basketbol Federasyonu (TBF) ve FIBA’nın belirlediği resmi oyun kuralları ve saha standartlarına tam uyum sağlamanıza yardımcı olur. Bu, projenizin hem fonksiyonel hem de yasal olarak geçerli olmasını sağlar.
Neden Eksiksiz Bir Basketbol Sahası Detayı Dwg?
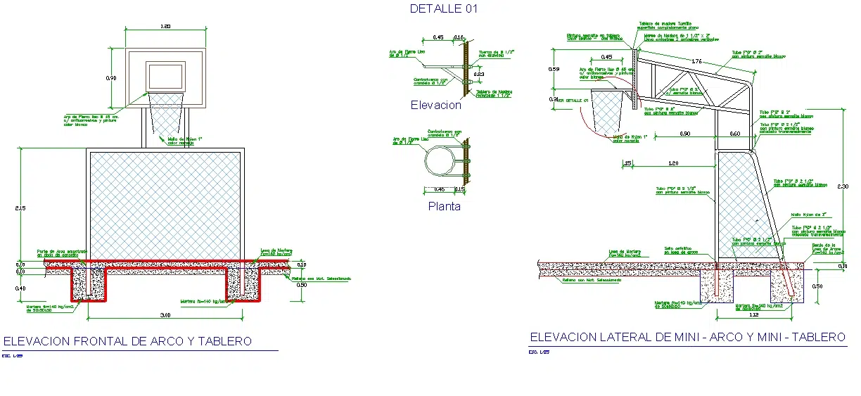
Herhangi bir spor alanı projesi, uygulayıcıya net talimatlar veren teknik detaylar olmadan eksik kalır. Bir Basketbol Sahası Detayı Dwg dosyası, projenin tüm paydaşları (mimar, mühendis, yüklenici) arasında ortak bir dil oluşturur. Bu çizimler, 28×15 metrelik standart saha ölçülerini, üç sayı çizgisinin yarıçapını, boyalı alanın (restricted area) boyutlarını ve diğer tüm oyun çizgilerinin kalınlık ve konumlarını net bir şekilde belirtir. Bunun da ötesinde, zemin kaplamasının altındaki katmanları (örneğin dış mekanda sıkıştırılmış kırma taş, asfalt ve akrilik kaplama katmanları) kesitler halinde gösterir. Bu, sahanın hem oyun performansını (top sekmesi, zemin esnekliği) hem de dayanıklılığını doğrudan etkiler. Projelerinizde profesyonel bir Basketbol Sahası Detayı Dwg seti kullanarak, hem maliyetli uygulama hatalarını önler hem de uluslararası standartlarda bir tesis inşa etmiş olursunuz.

DWG Dosyasında Neler Bulacaksınız? Kapsamlı Basketbol Sahası Detayı Dwg İçeriği
Sizler için özenle hazırladığımız bu detaylı Basketbol Sahası Detayı Dwg arşivi, bir basketbol sahası projesinde ihtiyaç duyabileceğiniz tüm temel teknik çizimleri içermektedir. Bu pakette bulabileceğiniz ana başlıklar şunlardır:
- Saha Planları ve Ölçüleri: FIBA standartlarında tam saha (28x15m), yarı saha ve sokak basketbolu (3×3) sahaları için tüm oyun çizgilerini içeren ölçülendirilmiş planlar.
- Zemin Kesit Detayları:
- Dış Mekan: Akrilik, tartan veya poliüretan zemin kaplamaları için beton veya asfalt altyapı üzerine katmanları gösteren sistem kesitleri.
- İç Mekan: Masif parke veya PVC spor zemin kaplamaları için şok emici (shock pad) alt katmanlarla birlikte sistem kesitleri.
- Pota Detayları: Standart pota panyası ve çember ölçüleri, pota direği temel ankraj detayı ve potanın saha çizgilerine göre konumlandırılmasını gösteren plan ve görünüşler.
- Drenaj Detayları (Dış Mekan): Sahanın yüzey suyunun tahliyesi için gerekli olan eğim yönlerini ve saha kenarındaki drenaj kanalı veya ızgara detaylarını içeren çizimler.
- Çevre Donatıları: Saha etrafındaki tel çit sistemleri, aydınlatma direklerinin yerleşimi ve seyirci oturma alanları için referans detayları.
Bu zengin içerikli Basketbol Sahası Detayı Dwg arşivi ile projelerinizi hızlı, doğru ve eksiksiz bir şekilde tamamlayabilirsiniz.

Basketbol Sahası Detayı Dwg Dosyasını İndirin
Projelerinize profesyonel bir standart getirmek ve uygulama sürecini kolaylaştırmak için ihtiyacınız olan bu kapsamlı Basketbol Sahası Detayı Dwg dosyasını projemimari.com adresinden kolaylıkla indirebilirsiniz. Aşağıdaki tabloda yer alan linki kullanarak arşive anında ulaşabilirsiniz. Bu kaynak; mimarlar, peyzaj mimarları, inşaat mühendisleri, spor tesisi danışmanları ve belediyelerin ilgili birimleri için temel bir başvuru kılavuzu niteliğindedir. Spor zeminleri hakkında daha fazla teknik bilgi için Tarkett Spor Zeminleri gibi üretici kaynaklarını inceleyebilirsiniz. Diğer spor sahaları için sitemizdeki Spor Tesisleri Projeleri Arşivi bölümüne de göz atmayı unutmayın.

Projenizin Detayları İçin Mükemmel Çözüm: Basketbol Sahası Detayı Dwg
Doğru, uygulanabilir ve standartlara uygun detaylara ulaşmak, başarılı bir spor tesisi projesinin temelidir. Bu özenle hazırlanmış Basketbol Sahası Detayı Dwg arşivi sayesinde projelerinizde hem zamandan tasarruf edebilir hem de tüm teknik ve yasal gereklilikleri eksiksiz karşıladığınızdan emin olabilirsiniz. Oyunculara yüksek performanslı ve güvenli bir oyun alanı sunarken, yatırımınızın uzun ömürlü olmasını sağlayın. Okul bahçelerinden profesyonel spor komplekslerine kadar her ölçekteki proje için bu profesyonel kaynağı mutlaka proje kütüphanenize ekleyin. Daha fazla yapısal çözüm için Spor Yapıları Detay Kütüphanesi sayfamızı ziyaret etmeyi unutmayın.
İndirme Bilgileri

Basketbol Sahası Detayı DWG İndir
Basketbol Sahası Detayı DWG dosyası, mimarlık ve inşaat projelerinizde kullanabileceğiniz
AutoCAD uyumlu bir çizimdir. Öğrenciler, mühendisler ve mimarlar için pratik bir kaynak olup,
projelerinizde hızlı ve doğru çözümler sağlar.

