Asansör Detay DWG: Projeleriniz İçin Hemen İndirin
Modern mimarinin vazgeçilmez bir unsuru olan dikey sirkülasyon sistemleri, bir binanın işlevselliğini ve konforunu doğrudan belirler. Bu sistemlerin merkezinde yer alan asansörlerin projelendirilmesi ise, mimari, statik ve mekanik disiplinler arasında kusursuz bir koordinasyon gerektiren karmaşık bir süreçtir. Projenin en erken aşamalarından itibaren doğru kuyu ölçülerinin bırakılması, makine dairesi gereksinimlerinin planlanması ve yasal yönetmeliklere tam uyum sağlanması kritik öneme sahiptir. Bu noktada, mimarlar, mühendisler ve uygulamacılar için en güvenilir yol gösterici, standartlara uygun, profesyonel bir asansör detay dwg dosyasıdır. Projemimari.com olarak, projelerinizde karşılaşabileceğiniz teknik zorlukları aşmanızı sağlayacak, size zaman ve maliyet avantajı sunacak bu temel teknik arşivi sunuyoruz. İster konut, ister ofis, isterse de bir kamu binası projesi üzerinde çalışıyor olun, bu kapsamlı asansör detay dwg paketi, tasarım ve uygulama süreçlerinizi önemli ölçüde kolaylaştıracaktır.
Asansör sistemlerinin entegrasyonu, sadece bir boşluk bırakmaktan çok daha fazlasını ifade eder. Kuyu dibi (pit) derinliğinden, en üst kat tavan yüksekliğine (son kat), havalandırma menfezlerinden elektrik panosu yerleşimine kadar her bir unsurun milimetrik hassasiyetle planlanması gerekir. Yapılacak en küçük bir hata, şantiyede geri dönüşü olmayan yapısal müdahalelere veya sistemin verimsiz çalışmasına neden olabilir. Bu nedenle, güvenilir bir asansör detay dwg referansına sahip olmak, projenin sağlığı için bir lüks değil, bir zorunluluktur. Sunduğumuz bu çizim seti, Türkiye’de geçerli olan Asansör Yönetmeliği ve ilgili standartlar göz önünde bulundurularak hazırlanmıştır. Bu sayede, projelerinizin hem yasal denetimlerden sorunsuzca geçmesini hem de kullanıcılar için maksimum güvenlik ve konfor sunmasını garanti altına alabilirsiniz.
Neden Eksiksiz Bir Asansör Detay DWG?
Herhangi bir mimari proje, disiplinler arası koordinasyonu sağlayan doğru detaylar olmadan eksik kalır. Asansörler söz konusu olduğunda bu durum daha da kritik hale gelir. Çünkü asansör boşluğu, binanın strüktürünü, mekanik ve elektrik altyapısını doğrudan etkiler. Eksiksiz bir asansör detay dwg dosyası, bu koordinasyonun temelini oluşturur. Mimari planda bırakılan boşluğun, seçilen asansör tipi ve kapasitesi için yeterli olup olmadığını en baştan teyit etmenizi sağlar. Makine daireli sistemlerde dairenin boyutları ve havalandırması, makine dairesiz (MRL) sistemlerde ise kuyu içindeki servis alanları gibi kritik bilgileri netleştirir. Uygulama aşamasında “buraya sığmıyor” gibi maliyetli sürprizlerle karşılaşmamak için, projenize başlamadan önce elinizin altında güvenilir bir asansör detay dwg setinin olması, size profesyonel bir güvence sağlar ve iş akışınızı hızlandırır.

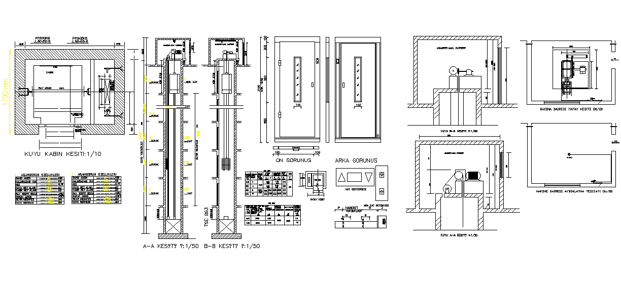
DWG Dosyasında Neler Bulacaksınız? Kapsamlı Asansör Detay DWG İçeriği
Sizler için hazırladığımız bu profesyonel asansör detay dwg arşivi, farklı asansör tipleri ve proje ihtiyaçlarına yönelik zengin bir içerik sunmaktadır. Bu pakette bulabileceğiniz temel çizimler şunlardır:
- Makine Daireli (MR) Asansör Detayları: Farklı kapasitelere (4, 6, 8 kişilik vb.) göre standart kuyu plan ölçüleri, kuyu dibi ve son kat kesitleri, makine dairesi yerleşim planı ve havalandırma detayları.
- Makine Dairesiz (MRL) Asansör Detayları: Modern projelerde sıkça tercih edilen MRL sistemler için kompakt kuyu planları, kesitlerde motorun ve panonun konumlandırılması, servis alanı gereksinimleri.
- Hidrolik Asansör Detayları: Genellikle az katlı binalarda kullanılan hidrolik sistemler için piston ve makine dairesi yerleşim planları, kuyu kesitleri.
- Kapı ve Kasa Detayları: Otomatik merkezi ve teleskopik kapı tipleri için duvar boşlukları, kat bitişleri ile eşik seviyeleri, kapı kasası montaj detayları.
- Kuyu Elemanları ve Yerleşimleri: Rayların, karşı ağırlığın, tamponların ve diğer güvenlik elemanlarının kuyu içindeki konumlarını gösteren plan ve kesitler.
- Engelli Erişimi ve Standartlar: Engelli erişimine uygun kabin ölçüleri, düğme (butoniyer) yükseklikleri ve acil durum sistemleri için referans detayları içeren bir asansör detay dwg bölümü.
Bu kapsamlı asansör detay dwg içeriği sayesinde, projenizin gereksinimlerine en uygun çözümü kolayca bulabilir ve paftalarınıza hatasız bir şekilde entegre edebilirsiniz.

Asansör Detay DWG Dosyasını İndirin
Projelerinizde teknik doğruluğu ve yasal uyumluluğu sağlamak için ihtiyacınız olan bu eksiksiz asansör detay dwg dosyasını projemimari.com adresinden kolaylıkla indirebilirsiniz. Aşağıdaki tabloda yer alan linki kullanarak arşive anında ulaşabilirsiniz. Bu kaynak; mimarlık ve mühendislik öğrencileri, profesyonel mimarlar, inşaat mühendisleri, makine mühendisleri ve asansör firmaları için temel bir başvuru kılavuzu niteliğindedir. Projelerinizde en doğru referansları kullanmak için önde gelen üreticilerin teknik kaynaklarını da inceleyebilirsiniz; örneğin Kone Planlama Araçları sayfası faydalı bilgiler sunmaktadır. Diğer teknik çizim ihtiyaçlarınız için sitemizdeki Mimari Detay Arşivi bölümüne de göz atmayı unutmayın.

Projenizin Detayları İçin Mükemmel Çözüm: Asansör Detay DWG
Doğru, standartlara uygun ve kolay uygulanabilir teknik çizimlere ulaşmak, başarılı bir projenin temel taşıdır. Bu özenle hazırlanmış asansör detay dwg arşivi sayesinde projelerinizde hem değerli zamandan tasarruf edebilir hem de olası uygulama hatalarının önüne geçerek maliyetlerinizi kontrol altında tutabilirsiniz. Tasarım aşamasında tüm disiplinlerin aynı referans üzerinden çalışmasını sağlayarak koordinasyonu güçlendirin ve projelerinizi sorunsuz bir şekilde tamamlayın. Yapılarınıza değer katacak, güvenli ve konforlu dikey sirkülasyon alanları yaratmak için bu profesyonel asansör detay dwg kaynağını mutlaka proje kütüphanenize ekleyin. Daha fazla yapısal ve mekanik çözüm için Teknik Detay Çözümleri sayfamızı ziyaret edebilirsiniz.
İndirme Bilgileri
| Asansör Detay DWG Bilgileri | |
|---|---|
| İndirme Bağlantısı | Asansör Detay Arşivi.dwg |
| İçerik | Asansör Kuyu Planları, Kesitleri ve Montaj Detayları |
| Ölçek | 1/50, 1/20, 1/10 Ölçekli Detaylar |
| Dosya Türü | 2018 Autocad .dwg sürümü |
| Dosya Boyutu | 4 MB |
| Web Sitesi | projemimari.com |

