Ahşap Merdiven Detay Kesit Plan DWG: Projeleriniz İçin Hemen İndirin
Mimarlık ve iç mekan tasarımında, estetiğin yanı sıra fonksiyonellik ve doğru uygulama detayları büyük önem taşır. Özellikle ahşap merdiven detay çözümleri, projenin kalitesini doğrudan etkileyen unsurlardan biridir. Bu noktada, profesyonel bir ahşap merdiven kesit planı DWG dosyası, tasarımcılar ve mimarlar için vazgeçilmez bir kaynaktır. Projemimari.com olarak, size bu kritik detayı sunmaktan mutluluk duyuyoruz. İster yeni bir proje geliştirin ister mevcut bir tasarımı iyileştirin, bu DWG dosyası iş akışınızı hızlandıracak ve doğru uygulamayı sağlayacaktır.
İçindekiler
Neden Eksiksiz Bir Ahşap Merdiven DWG Detayı?
Her ahşap merdiven çizimi, detaylı ve doğru bir kesit planı olmadan eksik kalır. Bu tür teknik çizimler, merdivenin taşıyıcı sisteminden basamakların ölçülerine, korkuluk bağlantılarından malzeme birleşimlerine kadar her öğenin net bir şekilde anlaşılmasını sağlar. Yanlış veya eksik detaylar, hem uygulama aşamasında ciddi sorunlara yol açabilir hem de güvenlik riskleri oluşturabilir. Bu nedenle, projenizin başarısı için güvenilir bir ahşap merdiven detay DWG dosyasının elinizin altında olması, size zaman ve maliyet avantajı sunar. Mimari projelerinizde doğru adımlar atmak için bu tür kaynaklara başvurmak hayati öneme sahiptir.

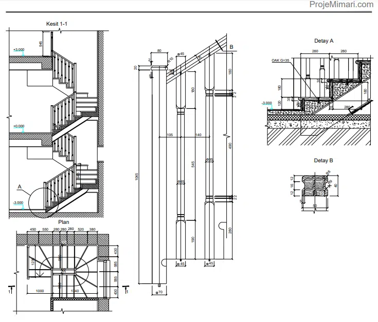
DWG Dosyasında Neler Bulacaksınız?
Paylaştığımız ahşap merdiven detay kesit planı DWG dosyası, profesyonel standartlarda hazırlanmıştır ve şunları içerir:
- Merdiven basamak ve rıht ölçüleri
- Taşıyıcı sistemin detayları (örneğin, omurga veya kiriş bağlantıları)
- Korkuluk ve küpeşte birleşim noktaları
- Malzeme bilgileri ve kesit kalınlıkları
- Genel yerleşim planı ve önemli kot bilgileri
Bu detaylar, mimari projelerinizde hem estetik hem de yapısal uygunluğu garanti altına almanıza yardımcı olacaktır. Bu DWG ile karmaşık ahşap merdiven çizimi işlerinizi kolayca çözebilirsiniz.
Ahşap Merdiven Detay DWG Dosyasını İndirin
Projelerinizi bir üst seviyeye taşımak için ihtiyacınız olan bu ahşap merdiven detay kesit planı DWG dosyasını Projemimari.com adresinden kolayca indirebilirsiniz. Dosyayı indirmek için aşağıdaki bağlantıyı kullanmanız yeterlidir. Bu kaynak, başta mimarlık öğrencileri ve genç mimarlar olmak üzere sektördeki tüm profesyonellerin işini kolaylaştıracaktır. Benzer mimari detaylar ve projeler için diğer DWG dosyalarımızı da inceleyebilirsiniz.
Ahşap Merdiven Detay Kesit Plan DWG İndir
Projenizin Detayları İçin Mükemmel Çözüm
Doğru ahşap merdiven detay çözümlerine ulaşmak, başarılı bir projenin anahtarıdır. Bu ahşap merdiven kesit planı DWG dosyası, size hem zaman kazandıracak hem de tasarımlarınızın kalitesini artıracaktır. Mimari çizimlerinize profesyonel bir dokunuş katmak ve uygulamada karşılaşılabilecek olası sorunları önlemek için bu kaynağı mutlaka kullanın. Daha fazla teknik detay ve ilham verici projelere göz atmak için Baumit Mimari Detay Çizimleri bölümünü de ziyaret edebilirsiniz.
| İndirme Bağlantısı : | Ahşap Merdiven Detay Plan Kesit Dwg |
| İçerik; | Ahşap Merdiven Plan, Kesit ve Sistem Detay çizimi |
| Ölçek ; | 1/1 Ölçek |
| Dosya Türü ; | 2018 Autocad .dwg sürümü |
| Dosya boyutu ; | 5 mb |


